주민이 주민을 돌보는 지역사회를 꿈꾸며
지역주민과 함께, 느리지만 꾸준한 발걸음으로
노력하겠습니다.

서브컨텐츠

금천누리종합사회복지관은 금천구 지역을
이웃과 더불어 사는 누리 공동체로 만들어 나가고자 합니다.

공지사항

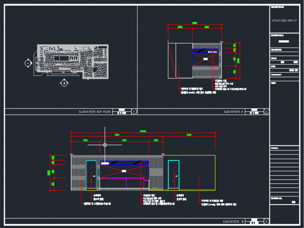
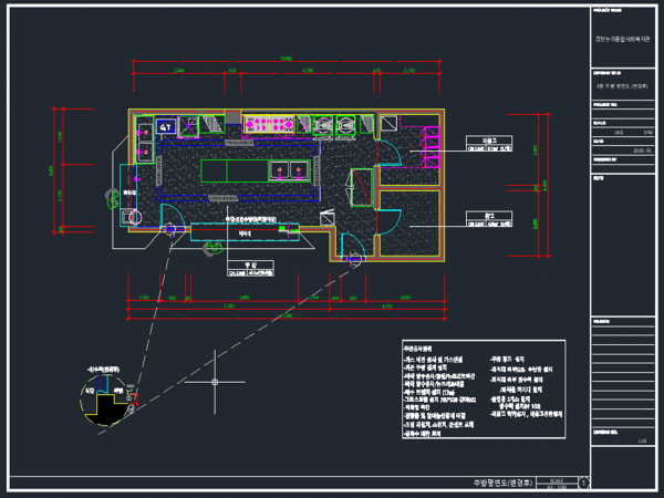
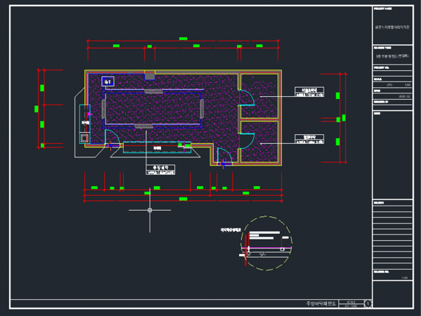
공지사항 | 2020년 기능보강사업(복지관 식당 리모델링)

2020-04-16

본문

[금천누리종합사회복지관]

 

- 2020년 기능보강사업 추진 계획(복지관 식당 리모델링 공사)

 

5층 식당 조리실의 노후화로 인하여
2020년 기능보강사업이 서울시에서 선정되어 설계가 마무리 되면 
나라장터 공개일찹을 통하여 낙찰자를 선정하여 진행 될 예정입니다.

조리실 누수 등 여러 가지 노후된 부분들이 환경개선 공사를 통하여
일하시는 분들의 안전을 최우선으로 설계하였으며  차후 멋지고 안전하게 변모된 모습 공개토록 하겠습니다.

 

 

 

 

 

 

 

 

2025년 하반기

2025년 상반기

2024년 하반기

2024년 상반기

2023년 하반기

X

개인정보처리방침

X

이메일무단수집거부

X
기관소개
사업소개
금천누리 소식
신청 및 참여
닫기